Share This Article
Honor is working on a new display technology that could be used on the company’s upcoming smartphones or tablets, according to details that have surfaced in a recently published patent. The Chinese firm has described a screen with one fixed panel and another that moves with the help of a linear motor. The technology could allow Honor to introduce a new smartphone or tablet with a compact or portable design that could “extend” to provide a larger display when required.
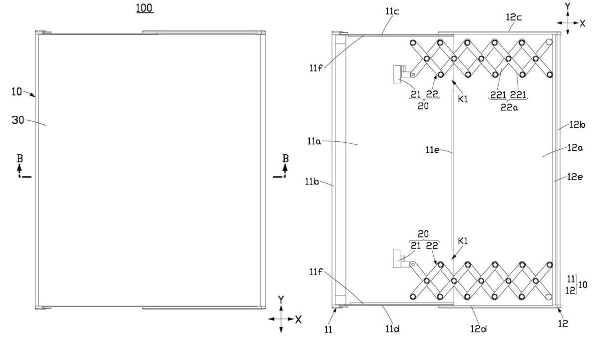
Honor’s Extendable Display Technology Features a Linear Motor
Details of Honor’s new extendable display technology are revealed in patent CN118582642A that was published on Tuesday and spotted by ITHome on the China National Intellectual Property Administration (CNIPA) portal. The company says that the display described in the patent attempts to solve some of the challenges related to flexible screens.
Honor’s improved display supports while retracted (left) and extended
Photo Credit: CNIPA/ HonorAccording to Honor, the existing structures used in devices with flexible displays currently do not offer enough support. The company describes the use of a new support structure that contains several support units that are connected to each other in a sequence.
These supporting structures are used to connect two display panels, one that remains fixed, while the other can be moved using a linear motor. In order to move the panel in a straight line, the device is shown to be equipped with an “elastic beam structure” that can be bent to provide more support to the screen, according to the patent document.
Various figures in the document illustrate how the display technology would work. The supporting structures can be extended and retracted in order to expand and shrink the size of the display, respectively. This process is helped along by the linear motor seen in the company’s images.
- Samsung Wins Patent for a Tri-Fold Smartphone With Specialised Barrier Layer for Improved Durability
- Samsung Wins Patent for a Tablet-Like Device With an Extendable Display
- Apple Patents Camera That Can Identify People Using Their
- Samsung Foldable Gaming Console Design Revealed in New Patent
- Huawei May Be Working on a Foldable Phone With an Attached Cover
- Realme Patent Document Describes a Foldable That Can Be Used With One Hand
While the appearance of technology described in a patent document is not a guarantee that it will make its way to a consumer electronics device, such a device could offer several benefits. For starters it could allow customers to access a much larger screen on demand, while carrying a much more portable device.


